Spice Export Office x Aloka
Client
Spice Export Office x Aloka
Location
Chennai, India
Year
2023
Credits
Design: Divya, Niveditta, Sona
Collaboration: Sampoorna, Ruba
Photographs : Sona, Ruba
This is a project by Aloka Design Studio in collaboration with a spice export company. Post the COVID break, they envisioned an office space that showed vibrancy for a very young team motivating them to come for work everyday.
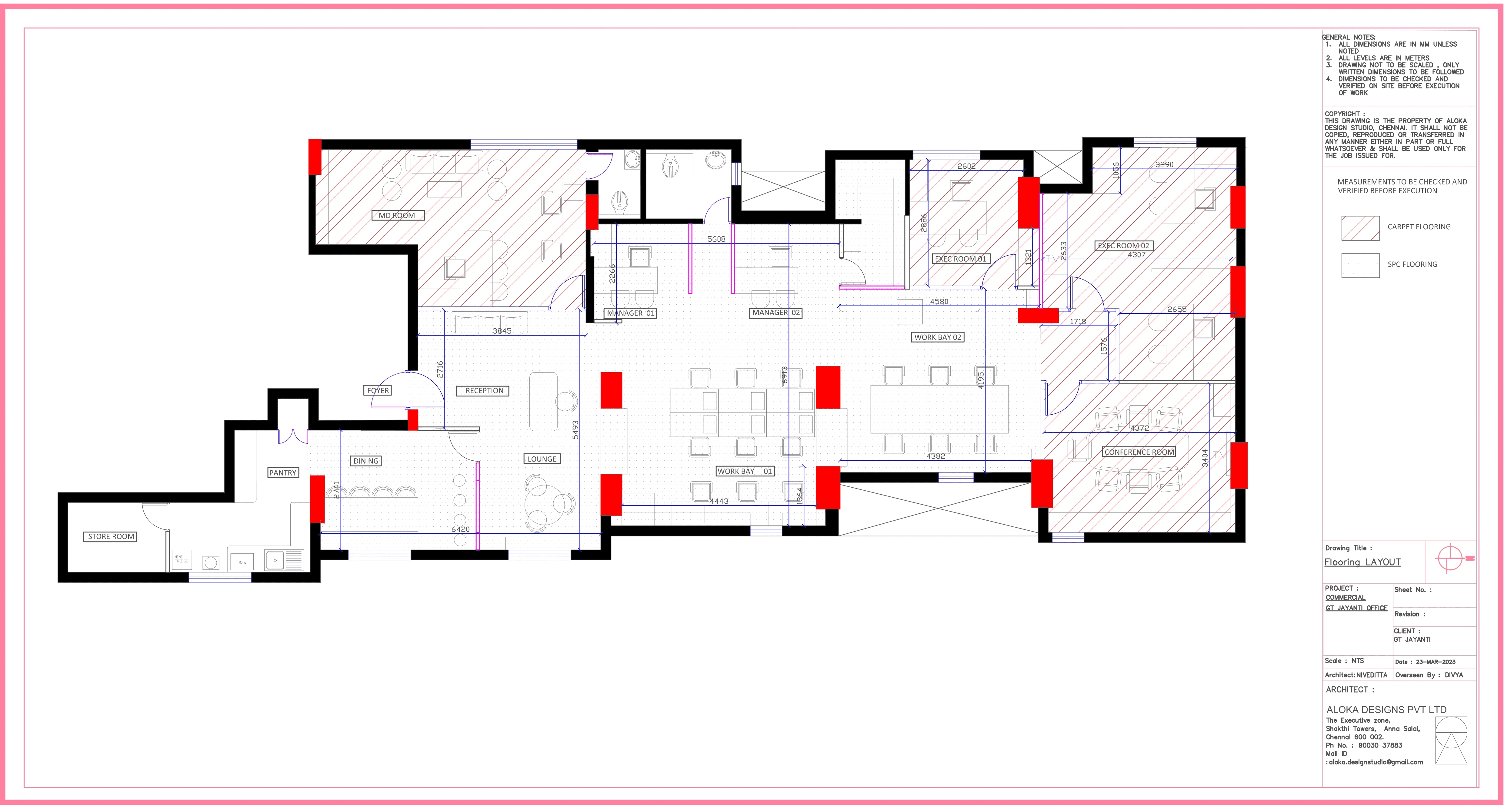
Our approach was to design spaces that were not just bigger, but also meaningful in identity and function. The choice of colors derived from their brand story, orange symbolizing energy and growth, mustard reflecting warmth and familiarity, gave the interiors a unique yet relatable character. Practicality was also central: efficient layouts, compact filing/storage spaces, and clear zoning for reception, workstations, and lounges ensured seamless day-to-day use.
Over a five‑month project from demolition to handover, I coordinated vendors and site execution, carried out regular inspections, and acted as the client’s main liaison, while developing inventive furniture solutions to resolve on-site constraints.














